Kostenlose Bewertung von Immobilien

Équipe GmbH

back to search

Großzügige Gewerbeflächen mit Hallen, Verkaufsflächen und eigenem Parkhaus in bester Lage!

Generally

Standort:
01127 Dresden
Objektnummer:
5430
Zimmeranzahl:
1
Grundstücksfläche:
8.961 m²
Verfügbar ab:
01.07.2026

Prices

Kaltmiete:
29.012,00 €
Nebenkosten:
8.584,00 €
Warmmiete:
37.595,00 €

Furnishing

Stellplatz Art:
Freiplatz
Stellplatzanzahl:
225
Räume veränderbar:
ja
Klimaanlage:
ja
Sat/TV:
ja
DV-Verkabelung:
ja
Kabelkanäle:
ja

Objektbeschreibung

In exzellenter Lage in Dresden bietet dieses vielseitig nutzbare Gewerbeobjekt außergewöhnliches Potenzial für unterschiedlichste Nutzungskonzepte.

Großzügige Gewerbeflächen und Hallen ermöglichen eine flexible Gestaltung und passen sich individuellen Anforderungen optimal an.

Die Highlights des Objektes auf einen Blick:

- Repräsentative und große Verkaufs- und Ausstellungsflächen
- Geräumige Lager- und Werkstatthallen
- Großzügige Freifläche mit über 200 Stellplätzen und eigenem Parkhaus
- Hochwertige und leistungsstarke Internetverkabelung
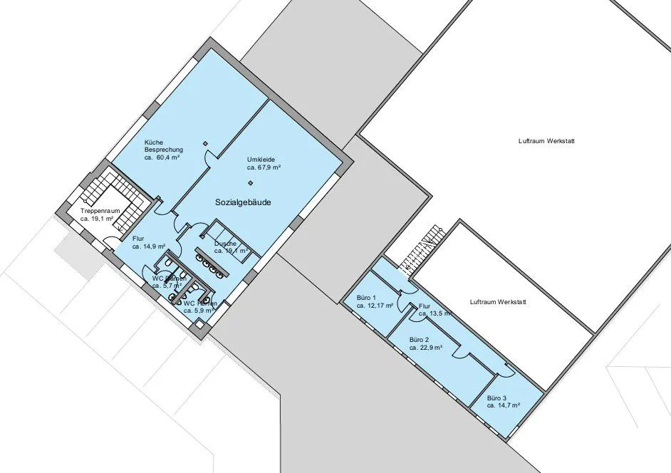
- Sozialgebäude mit Küche und Duschen sowie Büroräume

Die repräsentative Lage an einer stark frequentierten Verkehrsachse verbindet beste Sichtbarkeit mit hervorragender Anbindung. Ein Standort, der Raum für Ideen schafft und Ihrem Vorhaben den passenden Rahmen bietet.

Die Fläche befindet sich in einem sehr gepflegten Zustand.

Die angegebene Kaltmiete versteht sich als Verhandlungsbasis.

Bitte beachten Sie, dass das Angebot umsatzsteuer- und provisionspflichtig ist.

Wir freuen uns auf Ihre Kontaktaufnahme.

Weitere Angebote finden Sie auf unserer Homepage www.equipe-deutschland.de.

Lagebeschreibung

Pieschen ist ein alter Stadtteil im Nordwesten von Dresden. Seine Geschichte führt zurück bis in das Jahr 1292, als das sorbische Fischerdorf erstmalig urkundlich erwähnt wurde.

Läden des täglichen Bedarfs sind fußläufig schnell zu erreichen und in unmittelbarer Nähe.
Dank einer guten Verkehrsanbindung an den öffentlichen Nahverkehr und ebenso an die Autobahn gelangt man schnell ins Stadtzentrum und an weiter entfernte Ziele.

Informationen

Wir handeln im Auftrag des Eigentümers. Alle Angaben beruhen auf Auskünften und Unterlagen des Eigentümers. Eine Haftung für deren Richtigkeit und Vollständigkeit können wir außer im Falle von Vorsatz nicht übernehmen.
Wenn Sie uns per Kontaktaufnahme Anfragen zukommen lassen, werden Ihre Angaben aus dem Anfrageformular inklusive der von Ihnen dort angegebenen Kontaktdaten zwecks Bearbeitung der Anfrage und für den Fall von Anschlussfragen bei uns gespeichert. Die Verarbeitung der in das Kontaktformular eingegebenen Daten erfolgt somit ausschließlich auf Grundlage Ihrer Einwilligung (Art. 6 Abs. 1 lit. a DSGVO). Sie können diese Einwilligung jederzeit widerrufen. Dazu reicht eine formlose Mitteilung per E-Mail an uns. Die Rechtmäßigkeit der bis zum Widerruf erfolgten Datenverarbeitungsvorgänge bleibt vom Widerruf unberührt. Die von Ihnen im Kontaktformular eingegebenen Daten verbleiben bei uns, bis Sie uns zur Löschung auffordern oder Ihre Einwilligung zur Speicherung widerrufen. Zwingende gesetzliche Bestimmungen - insbesondere Aufbewahrungsfristen - bleiben unberührt.

Your consent is required

We and our third-party providers use technologies (e.g. cookies) to store and retrieve information on users' devices in order to process personal data such as IP addresses or browser data. In order to see our reviews on other platforms, you must accept them.