Kostenlose Bewertung von Immobilien

Équipe GmbH

back to search

Ein ganzes Bürogebäude nur für SIE - gestalten Sie mit dem Eigentümer Ihr Traumbüro!

Generally

Standort:
01796 Pirna
Objektnummer:
5258
Zimmeranzahl:
10
Stellplatzanzahl:
8
Dachbodenfläche:
100 m²
Beheizbare Fläche:
405 m²
Vermietbare Fläche:
405 m²
Bürofläche:
405 m²
Büroteilfläche:
405 m²
Teilbar ab:
405.28 m²
Etage:
Verfügbar ab:
01.02.2025

Prices

Kaltmiete:
1.650,00 €
Nebenkosten:
892,00 €
Warmmiete:
2.542,00 €
Stellplatz:
30,00 €

Furnishing

Stellplatz Art:
Freiplatz
Stellplatzanzahl:
8
Räume veränderbar:
ja
Dachboden:
ja
Fenster im Bad:
ja
Heizungsart:
Zentralheizung
Keller:
ja
Gewerbliche Nutzung erlaubt:
ja

Condition

Baujahr:
1898
Zustand:
Teil Vollrenovierungsbed
Gebäudeart:
Altbau

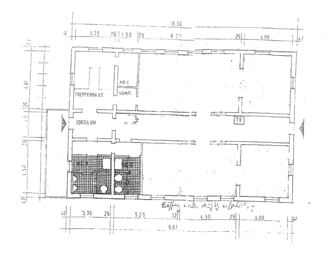
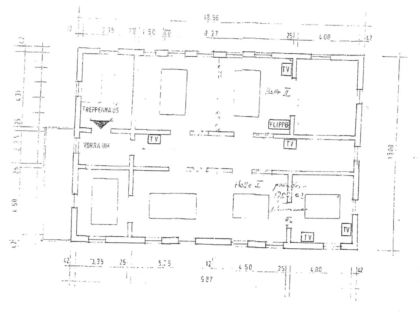
Objektbeschreibung

In Pirna befindet sich das voll erschlossene aber unsanierte Wohn- und Geschäftshaus mit einer Gesamtfläche von ca. 405 m². Das Gebäude steht unter Denkmalschutz. Es besteht aus einem Kellergeschoss, welches als Lager- oder Abstellfläche genutzt werden kann, dem Erdgeschoss, dem 1. Obergeschoss sowie dem Dachgeschoss. Dieses kann ausgebaut- und somit die anmietbare Fläche um ca. 100 m² erhöht werden.
Es ist ein massiver Mauerwerksbau mit Holzbalken-Deckenkonstruktion. Alle Wände vom Kellergeschoss bis zum 1. Obergeschoss sind Massivbauwände.
Im Innenbereich sind insbesondere die gut erhaltenen Stuck- und Deckenverzierungen und die wertvoll gestalteten Holztüren hervorzuheben. Die Gestaltung und Ausstattung Ihrer Büroräume kann individuell auf Ihre Bedürfnisse angepasst werden oder Sie können die Räume in Eigenregie um-/ausbauen.

Bei dem angegebenen Mietpreis befindet sich das Gebäude, in dem derzeitigen Ist-Zustand. Je nach Mietvertragslaufzeit, Ausbauwunsch oder in Eigenregie muss der Mietpreis neu vereinbart werden.

Alle angegebenen Preise sind Nettobeträge und verstehen sich zzgl. gesetzlich gültiger MwSt.

Weitere interessante Angebote finden Sie auf unserer Homepage unter www.equipe-deutschland.de

Lagebeschreibung

Die Stadt Pirna liegt im oberen Elbtal und ist die zweitgrößte Stadt im Landkreis Sächsische Schweiz. Durch die günstige Verkehrsanbindung ist Pirna die Stadt der kurzen Wege: Autobahn A17, S-Bahnlinien S1 und S2, diverse Buslinien sowie Schiffsverbindungen sorgen für eine gute und schnelle Erreichbarkeit aller Ziele.
Pirna bietet ein umfassendes Angebot an Schulen sowie Jugend- und Kindereinrichtungen.
Hier gibt es vielfältige Möglichkeiten zur Freizeitgestaltung, u. a. großzügig angelegte Spielplätze und Sportanlagen. Besondere touristische Attraktion, aber auch eine Oase der Ruhe und Entspannung, ist der Barockgarten Großsedlitz - eine der bekanntesten barocken Gartenanlagen Deutschlands aus der Zeit Augusts des Starken.

Informationen

Wir handeln im Auftrag des Eigentümers. Alle Angaben beruhen auf Auskünften und Unterlagen des Eigentümers. Eine Haftung für deren Richtigkeit und Vollständigkeit können wir außer im Falle von Vorsatz nicht übernehmen.
Wenn Sie uns per Kontaktaufnahme Anfragen zukommen lassen, werden Ihre Angaben aus dem Anfrageformular inklusive der von Ihnen dort angegebenen Kontaktdaten zwecks Bearbeitung der Anfrage und für den Fall von Anschlussfragen bei uns gespeichert. Die Verarbeitung der in das Kontaktformular eingegebenen Daten erfolgt somit ausschließlich auf Grundlage Ihrer Einwilligung (Art. 6 Abs. 1 lit. a DSGVO). Sie können diese Einwilligung jederzeit widerrufen. Dazu reicht eine formlose Mitteilung per E-Mail an uns. Die Rechtmäßigkeit der bis zum Widerruf erfolgten Datenverarbeitungsvorgänge bleibt vom Widerruf unberührt. Die von Ihnen im Kontaktformular eingegebenen Daten verbleiben bei uns, bis Sie uns zur Löschung auffordern oder Ihre Einwilligung zur Speicherung widerrufen. Zwingende gesetzliche Bestimmungen - insbesondere Aufbewahrungsfristen - bleiben unberührt.

Your consent is required

We and our third-party providers use technologies (e.g. cookies) to store and retrieve information on users' devices in order to process personal data such as IP addresses or browser data. In order to see our reviews on other platforms, you must accept them.