Kostenlose Bewertung von Immobilien

Équipe GmbH

zurück zur Suche

Nach den eigenen Vorstellungen - hochwertig & modern Wohnen!

Allgemein

Standort:
01277 Dresden
Objektnummer:
4930G
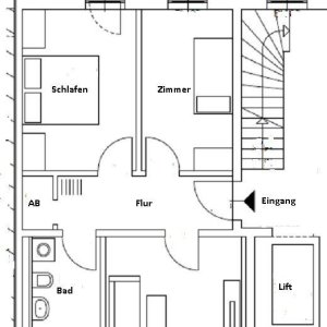
Zimmeranzahl:
3
Stellplatzanzahl:
1
Wohnfläche:
81 m²
Teilbar ab:
80.5 m²
Etage:
3
Verfügbar ab:
01.03.2025

Preise

Kaufpreis:
565.000,00 €

Ausstattung

Stellplatz Art:
Freiplatz
Stellplatzanzahl:
1
Fliesenboden:
ja
Parkettboden:
ja
offene Küche:
ja
Gartennutzung:
ja
Sat/TV:
ja
Abstellraum:
ja
Rollladen:
ja
Badezimmer:
Wanne und Dusche
Fenster im Bad:
ja
Heizungsart:
Fernwärme
Personenaufzug:
ja
Keller:
ja
Fahrradraum:
ja
Wasch- und Trockenraum:
Ja

Zustand

Baujahr:
2023
Zustand:
Erstbezug
Gebäudeart:
Neubau
Austattung:
Gehoben
Austattung:
Gehoben

Energieausweis

Art:
Bedarf
Endenergiebedarf:
57,00 kWh/(m²*a)
Primärenergieträger:
Fernwärme
Wertklasse:
B
Baujahr:
2023

Objektbeschreibung

Im Objekt befindet sich eine Großzahl verschiedener Wohnungstypen.

Sie können mit uns den Grundriss individuell planen (nach bautechnischen Möglichkeiten) und die Materialien innerhalb der Wohnung mit uns bemustern.

Sprechen Sie uns einfach an und wir beraten Sie hierzu gern und finden Ihr neues Zuhause gemeinsam.

Gern können Sie sich weitere Angebote auf www.equipe-deutschland.de ansehen.

Lagebeschreibung

Der Stadtteil Striesen ist einer der begehrtesten Wohnstandorte von Dresden. Das liegt an der Nähe zum Stadtzentrum und dem Großen Garten, der in wenigen Fußminuten erreichbar ist. Die Straßenzüge sind geprägt von herrschaftlichen und exklusiv sanierten Villen aus der Jahrhundertwende. In der locker bebauten Umgebung mit viel Grün ist die Anbindung zu den ÖPNV ausgezeichnet. Viele Einkaufs- und Freizeitmöglichkeiten befinden sich in fußläufiger Entfernung.

Hier wird eine Kombination von Arbeit und erlebnisreichem Wohnen verbunden und durch beste Einkaufsmöglichkeiten in der näheren Umgebung ergänzt. Ebenso ist der Stadtteil sehr zentral gelegen und ermöglicht so, durch seine gute Verkehrsanbindung, einen unkomplizierten Besuch der Kultureinrichtungen z.B.: des Dresdner Zwingers, der Semperoper, Frauenkirche und der Brühlschen Terrassen.

Dresden bietet Ihnen Natur, Kultur, Shopping und pures Nightlife – direkt vor Ihrer Haustür.

Informationen

Wir handeln im Auftrag des Eigentümers. Alle Angaben beruhen auf Auskünften und Unterlagen des Eigentümers. Eine Haftung für deren Richtigkeit und Vollständigkeit können wir außer im Falle von Vorsatz nicht übernehmen.
Wenn Sie uns per Kontaktaufnahme Anfragen zukommen lassen, werden Ihre Angaben aus dem Anfrageformular inklusive der von Ihnen dort angegebenen Kontaktdaten zwecks Bearbeitung der Anfrage und für den Fall von Anschlussfragen bei uns gespeichert. Die Verarbeitung der in das Kontaktformular eingegebenen Daten erfolgt somit ausschließlich auf Grundlage Ihrer Einwilligung (Art. 6 Abs. 1 lit. a DSGVO). Sie können diese Einwilligung jederzeit widerrufen. Dazu reicht eine formlose Mitteilung per E-Mail an uns. Die Rechtmäßigkeit der bis zum Widerruf erfolgten Datenverarbeitungsvorgänge bleibt vom Widerruf unberührt. Die von Ihnen im Kontaktformular eingegebenen Daten verbleiben bei uns, bis Sie uns zur Löschung auffordern oder Ihre Einwilligung zur Speicherung widerrufen. Zwingende gesetzliche Bestimmungen - insbesondere Aufbewahrungsfristen - bleiben unberührt.

Ihre Zustimmung ist erforderlich

Wir und unsere Drittanbieter verwenden Technologien (z. B. Cookies) zum Speichern und Abrufen von Informationen auf den Geräten der Nutzer, um personenbezogene Daten wie IP-Adressen oder Browserdaten zu verarbeiten. Damit Sie unsere Bewertungen auf anderen Plattformen sehen können müssen Sie diese akzeptieren.