Kostenlose Bewertung von Immobilien

Équipe GmbH

zurück zur Suche

Aufgepasst - provisionsfreie & zentrale Büroflächen zur sofortigen Anmietung!

Allgemein

Standort:
01277 Dresden
Objektnummer:
5413
Zimmeranzahl:
15
Gesamtfläche:
940 m²
Bürofläche:
791 m²
Büroteilfläche:
791 m²
Teilbar ab:
791 m²
Etage:
3
Verfügbar ab:
01.12.2025

Preise

Kaltmiete:
4.700,00 €
Nebenkosten:
2.416,00 €
Warmmiete:
7.116,00 €
Stellplatz:
35,00 €

Ausstattung

Stellplatz Art:
Freiplatz
Stellplatzanzahl:
5
Räume veränderbar:
ja
Teekueche vorhaden:
ja
Sat/TV:
ja
DV-Verkabelung:
ja
Abstellraum:
ja
Gewerbliche Nutzung erlaubt:
ja

Zustand

Baujahr:
1970

Energieausweis

Art:
Verbrauch
Stromwert:
55
Gültig bis:
16.05.2025
Energieverbrauchskennwert:
68,00 kWh/m²a

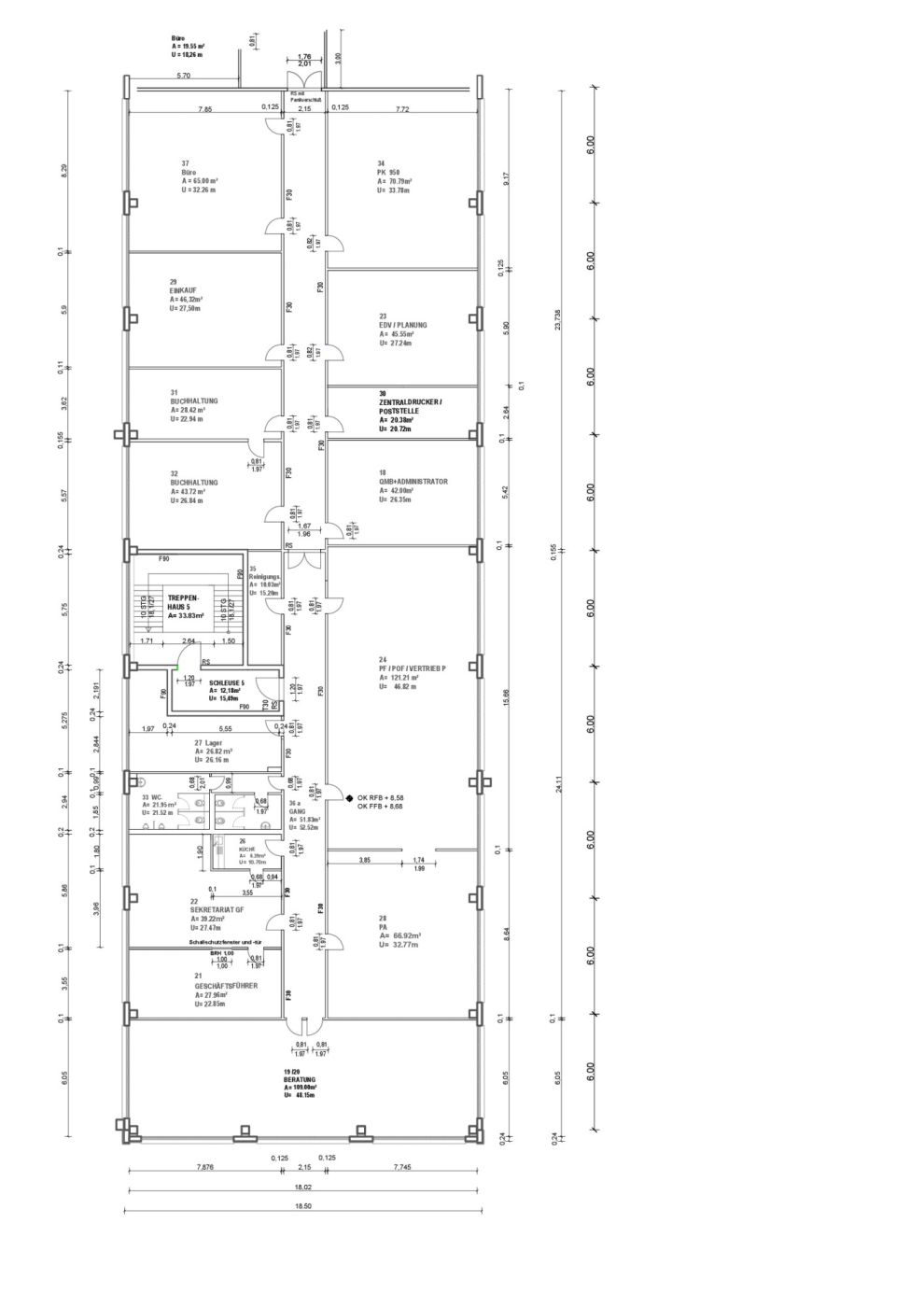
Objektbeschreibung

Für Sie jetzt provisionsfrei zur sofortigen Anmietung.

Dieses Objekt befindet sich in einem Gewerbegebiet im Dresdner Stadtteil Seidnitz.
Die hier zur Vermietung stehende Büroeinheit verfügt über eine Gesamtfläche von ca. 940 m².
Der aktuelle Mietzins bezieht sich auf den IST-Zustand. Es ist auch möglich eine Teilfläche von ca. 415 m² oder das 1. OG im Haus mit weiteren ca. 882 m² anzumieten.

Die lichtdurchfluteten Büroräume befinden sich im 2. Obergeschoss und bieten aufgrund unterschiedlicher Größen ausreichend Platz für verschiedene Nutzungswünsche - ob kleines Büro oder großzügiger Besprechungsraum.
Es handelt sich um mind. 15 Büro- und Lagerräume, die auf Grund ihrer Größe leicht nochmals aufgeteilt werden könnten.
Getrennte Sanitärräume für Damen und Herren stehen selbstverständlich zur Verfügung, ebenso wie eine Teeküche. Für Ihre Produkte sind ausreichend Lagermöglichkeiten vorhanden.

Rasterdecken mit integrierten Lampen sind bereits vorhanden.
Derzeit ist ein Linoleumboden in allen Büroräumen verlegt - die Bäder sind gefliest.

Bitte beachten Sie, dass im Objekt kein Aufzug vorhanden ist.

Bis zu 10 Außenstellplätze zum Preis von á 35,00 EUR netto können auf Wunsch mit angemietet werden.

S-Bahn, Bus und Straßenbahn sind in wenigen Gehminuten zu erreichen und verkehren zum Teil bis spät in die Nacht.

Das Seidnitz-Center ist ebenfalls fußläufig erreichbar.

Die Autobahnanbindung ist sehr gut, in nur wenigen Minuten erreicht man die A17.

Weitere Angebote können Sie gern unter www.equipe-deutschland.de anschauen.

Lagebeschreibung

Seidnitz ist ein Stadtteil im Dresdner Osten und ist vor allem durch die Dresdner Galopprennbahn bekannt.

Der Stadtteil mit einfachen und mittleren Wohnlagen ist heute von Gewerbegebieten und pragmatischer Wohnbebauung geprägt. Die Bebauung ist dennoch verschiedenartig.

Hier siedelten sich zahlreiche Firmen und Gewerbebetriebe an.

In der locker bebauten Umgebung mit viel Grün ist die Anbindung zu den ÖPNV ausgezeichnet. Ins Stadtzentrum gelangt man innerhalb einer Viertelstunde mit der Straßenbahn.

Die Infrastruktur ist gut ausgebaut. Einrichtungen mit Angeboten des täglichen Bedarfs, wie Supermärkte, aber auch Baumärkte etc. sind schnell erreichbar.

Informationen

Wir handeln im Auftrag des Eigentümers. Alle Angaben beruhen auf Auskünften und Unterlagen des Eigentümers. Eine Haftung für deren Richtigkeit und Vollständigkeit können wir außer im Falle von Vorsatz nicht übernehmen.
Wenn Sie uns per Kontaktaufnahme Anfragen zukommen lassen, werden Ihre Angaben aus dem Anfrageformular inklusive der von Ihnen dort angegebenen Kontaktdaten zwecks Bearbeitung der Anfrage und für den Fall von Anschlussfragen bei uns gespeichert. Die Verarbeitung der in das Kontaktformular eingegebenen Daten erfolgt somit ausschließlich auf Grundlage Ihrer Einwilligung (Art. 6 Abs. 1 lit. a DSGVO). Sie können diese Einwilligung jederzeit widerrufen. Dazu reicht eine formlose Mitteilung per E-Mail an uns. Die Rechtmäßigkeit der bis zum Widerruf erfolgten Datenverarbeitungsvorgänge bleibt vom Widerruf unberührt. Die von Ihnen im Kontaktformular eingegebenen Daten verbleiben bei uns, bis Sie uns zur Löschung auffordern oder Ihre Einwilligung zur Speicherung widerrufen. Zwingende gesetzliche Bestimmungen - insbesondere Aufbewahrungsfristen - bleiben unberührt.

Ihre Zustimmung ist erforderlich

Wir und unsere Drittanbieter verwenden Technologien (z. B. Cookies) zum Speichern und Abrufen von Informationen auf den Geräten der Nutzer, um personenbezogene Daten wie IP-Adressen oder Browserdaten zu verarbeiten. Damit Sie unsere Bewertungen auf anderen Plattformen sehen können müssen Sie diese akzeptieren.